发布时间:2025年06月13日 [返回列表]
项目名称:廊坊临空服务中心
项目地点:河北,廊坊临空经济区
建筑面积:238,719㎡
清水面积:32,000㎡
建设单位:河北临空集团有限公司
建筑设计:中国建筑设计研究院有限公司
设计单位:中国建筑设计研究院有限公司、一合建筑
主创设计:崔愷、徐磊、丁利群、刘东顺
设计团队:王绍刚、李磊、周绮芸、潘超、陈霞、马原野、郑昊钦
总包单位:中国建筑第八工程局有限公司
清水施工:北京益汇达清水建筑工程有限公司
廊坊临空服务中心项目位于北京大兴国际机场临空经济区廊坊片区,该项目由中国建筑设计研究院有限公司一合建筑设计研究中心设计,北京益汇达清水建筑工程有限公司负责该项目清水施工。项目总建筑面积约23.9万㎡。由12栋5-17层的单体建筑和围绕各单体的清水连廊组成,承担着临空经济区政务服务、规划展览、会议办公、商务办公等多项功能,是临空经济区功能定位与发展理念的率先呈现,具有重要的样板意义。

▲整合多种功能的微型城市©一合
设计概况
#01、设计创意

▲整体轴测 ©一合
#02、“廊+坊”

▲南向城市立面,中轴线上为市民广场“城市客厅”©张广源
根据廊坊地域特色,崔愷院士提出了“廊+坊”的独特设计理念。
“廊”要解决的就是“象征性”的问题,实际上这个项目要代表的是整个临空经济区的廊坊部分,它的出现要给未来的使用者、投资方等带来一个在形象上的清晰认识。“廊”是把这些启动时需要的各个分散功能——规划展览馆、办事大厅、酒店、商业、启动性的办公等——整合成一个整体。这些功能如果分散设置,很有可能面临周边总是在施工的混乱状况,而集约化的方式会让这个新区的启动项目具有一定的完整度,不同功能之间不会互相干扰。
“坊”,是指小街区空间的营造。尽管项目体量和规模很庞大,功能很集约,但它里面的空间尺度实际上是小街区,为在其中穿行的人们提供了非常好的开放空间和步行空间,而且这跟原来的城市规划并不矛盾,符合原有地块的规划功能,它的地块变得更小,每一块比原始规划地块还小。
有些设计仅仅是为了宏伟感而做成大尺度,这是没有必要的;但这个项目是在形式上回应象征性需求的同时,在具体的街区上回应了人的便捷使用。
方案从城市设计角度出发,以“廊”整合区域整体建筑框架,以“坊”打造街区里坊空间,形成“廊+坊”的总体设计理念,打造全新体验的临空市民服务中心。设计从宏观视野入手,将广场居中设置,打造南北绿化空间,串联公共开放轴线,城市空间更加完整大气。

▲设计概念草图 © 崔愷
施工概况
#01、清水建筑材料的选择
项目“廊”结构表面效果设计要求平滑的光面效果,因此,清水混凝土被用作临空服务中心“廊”结构建造的主要材料,不仅因为其混凝土材料良好的耐久性,还因为其可塑性,达到所见即是结构的效果。浅灰色混凝土效果又能使建筑的各个体量变得秩序统一却各有特色,沉稳大方却不乏动感。连廊顶部采用钢桁架、不锈钢护栏及玻璃材质,在用混凝土体现建筑的力量感的同时和现代建筑做到了很好的结合,形体的质感及空间的通透感。如何呈现设计意图及保证设计效果是本项目最大的难点和亮点。

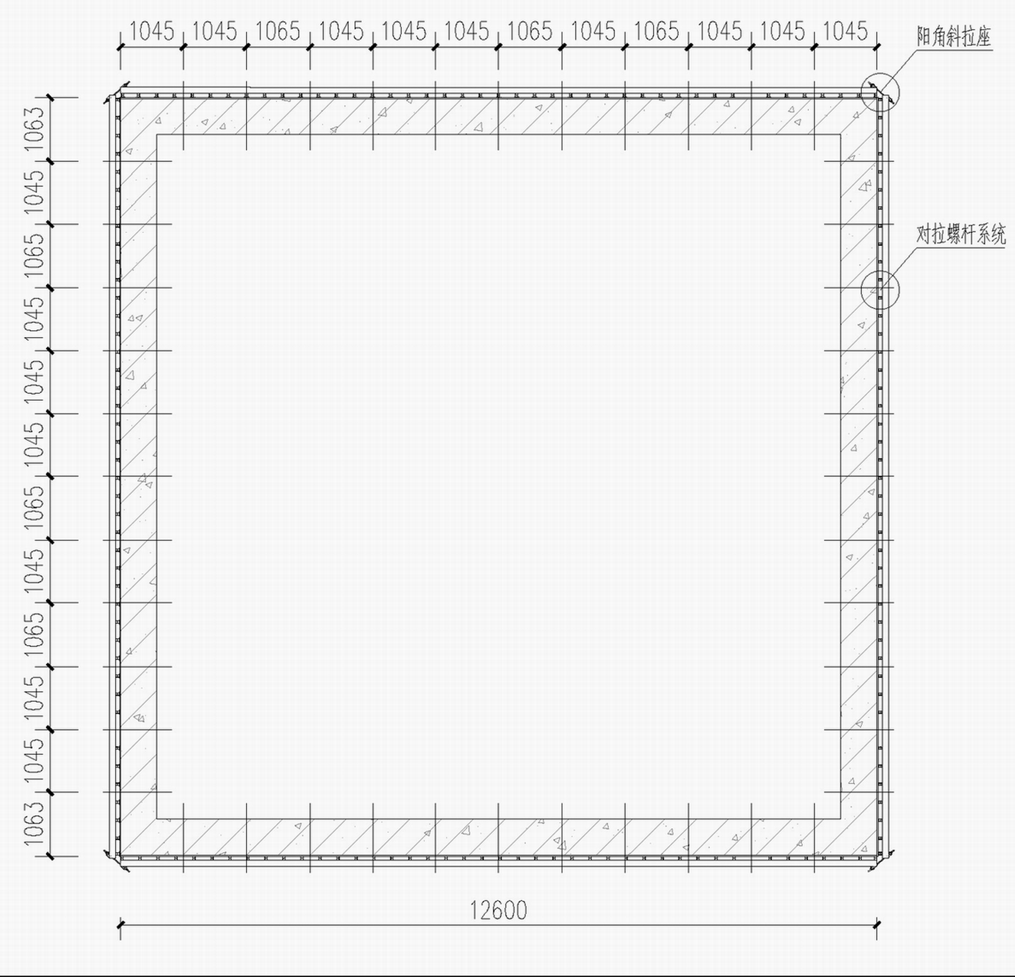
▲室外长廊清水混凝土柱平面图
#02、清水混凝土模板分缝
横向排版:清水砼柱为竖向构件,从负0.800米开始到最高点建筑标高18.400米,根据建筑结构尺寸设计模板,尽量少裁切模板,模板统一按竖向拼接(按模板长度方向为高度),排版时由下至上充分利用整板高度(2400mm)。
竖向排版:在水平方向,考虑柱内的钢结构H型钢的关系,将螺杆眼尽量让开50-100mm的距离,同时,也要满足标高6.400米的连梁宽度,模板两侧采用1200,再取中间值,考虑蝉缝对称、螺栓孔布置均匀。
排版实例:以KZ1为例,说明本工程的模板配置及螺栓孔布置的原则。

▲KZ1蝉缝布置三维模型图

▲清水砼柱构件蝉缝布置立面图(KZ1为例)
#03、清水模版体系选型
3.1清水混凝土柱子模板体系选型
考虑整体清水砼柱子体量较大,为主要呈现清水混凝土外观效果的构件,摒弃了传统的木方做次龙骨,方钢做主龙骨的模板体系,因其自身的强度、刚度达不到效果需求造成浇筑后产生表面不平整、蝉缝处产生失水反砂、螺杆孔失水漏浆、根部错台等问题。
3.2本工程外墙采用新型铝合金几字梁大模板体系
1)模板组成:面板采用20厚优质清水专用覆膜模板作为面板,次龙骨使用75*70mm新型铝合金几字型材间距200mm,边框采用50*70方钢管(需刷防锈漆),主龙骨使用双C型钢(100#)间距600mm,主背楞。
2)面板连接方式:采用新型铝合金几字型材进行连接,从面板后面安装4*20mm高强自攻钉加固面板,保证混凝土表面无钉子孔。

▲模板平面布置图

▲模板体系立面图
#04、组合体系配置
外侧横背楞选用 10#双槽钢,竖向间距原则为 610mm;拉杆选用 M16 高强通丝对拉螺栓,模板底部两排对拉螺栓采用双螺帽。配优质PVC套管及定制清水专用堵头,清水专用覆膜模板和新型铝合金几字型梁之间用自攻螺丝连接(详见 A 图),内楞与外楞槽钢之间用Ф14mm勾头螺栓连接稳固,大模板之间的连接采用新型几字梁和步步紧相连接(详见 B 图),模板系统支撑架选用定制槽钢支架及钢管撑杆结合使用。

▲模板体系拼装横截面

▲新型铝合金几字梁横截面(左A右B)
#05、对拉螺栓、定制堵头、PVC明缝条的设计
对拉螺栓:本工程选用M18高强对拉通丝型螺栓,施工操作方便、截面精度易控制、表面无污染。严格控制板面与螺栓堵头之间缝隙,使螺栓孔不跑浆。 与对拉螺栓配套的定制清水专用堵头应有足够的强度,PVC套筒能有效保证墙截面尺寸及强度,以免造成孔眼变形或漏浆,影响墙体平整度,拆模后将堵头取出可以重复使用。

▲高强对拉螺杆配件图
定制堵头:本工程因对核心筒清水砼表观效果要求高,尤其是线、面、缝、洞等细部处理,为减少螺杆眼的失水率,采用了定制堵头(材质为PVC+尼龙),新设计的堵头改变丝杆尾部立角,将与模板接触端的末端丝纹增加成倒角,使得丝帽紧固模板时能达到更好的紧固效果,螺栓型堵头可保证螺母与模板形成夹紧式固定,避免其发生不同步变形。

▲新式堵头剖面图

▲定制堵头三维模型图

▲定制堵头三维模型安装示意图
明缝:本工程明缝按设计要求设计为凹槽形式,增强建筑的立体感。模板明缝使用等腰梯形截面明缝条。用自攻螺丝将明缝条固定在清水专用模板上,注意明缝条要求水平、垂直方向交圈。

▲PVC明缝条安装图
#06、科技创新
6.1高精度清水混凝土模板安装技术
在清水混凝土建造中,螺栓孔、蝉缝等构造对感官效果影响较大,为保证展示效果,提高工程质量,团队进行了多项研究。
1)装配式大模板加固体系:通过现场预制、地面拼装,整体吊装的方式,解决了模板散拼精度低的问题;
2)大型几字梁模板加固技术:采用连接片加几字梁龙骨实现模板拼缝紧密加固;
3)模板蝉缝加固工具:针对空间受限条件下无法应用整拼模板的情况,研究了一种模板蝉缝加固工具,确保了蝉缝顺直平整,整齐匀称。

▲新型几字梁大模型体系
6.2受限空间大跨度钢桁架提升施工技术
清水混凝土连廊钢桁架施工宽度一般较小(载体项目6-8米),且桁架距离主体较近(2-4米),采用传统提升方式,施工空间、提升角度受限,无法施工。研究了一种提升平台装置,实现了受限空间内大跨度钢桁架的整体提升。安装精度达到毫米级。

▲提升平台研究与设计
6.3高空超长清水连廊护栏模板技术
清水连廊围绕各个主楼设置,两侧为现浇悬挑护栏,传统模板体系需搭设满堂脚手架,施工成本较高,影响后续施工。研究了一种铝合金清水混凝土模板和钢结构边梁结合的加固方式,解决了运输空间受限的难题,降低了施工成本。在铝合金模板上设计了诱导缝和滴水槽,提升了护栏的耐久性、艺术性。

▲清水连廊护栏模板

▲清水悬挑护栏实景
完工效果
“廊+坊”体系将建筑和周边城市融合。南北向和城市绿化贯穿,东西向廊道形成层层递进的空间轴线,形成丰富的空间感受。同时借助巨构的建筑形式,为俯视角度提供较高辨识度,形成真正的“临空”地标。该项目获得2022-2023年度“建筑应用创新大赛金奖”。

▲清水混凝土廊下空间 ©张广源








▲廊坊临空服务中心实拍图©益汇达
走入临空服务中心之中,近距离触摸墙壁的表面,清水混凝土结构的力量以一种细腻的质感和肌理呈现,这就是混凝土和模板的自然痕迹。清水混凝土骨料就地取材,产自本地的河砂大小均匀细腻,成就了建筑空间的主色调,相比于传统清水混凝土的清冷,温暖的灰色调既有地域特色,也为项目营造出温润的表面质感。
项目通过设置不同的下沉庭院,平台空间、景观绿化,综合艺术展、活动展等,为市民提供丰富的空间体验,打造亲和、开放、有温度的服务中心。
本文部分资料来源于中国建筑设计研究院有限公司、一合建筑、中国建筑第八工程局有限公司